Dieses Anwesen liegt auf einem ca. 1.600 m² großen Grundstück im Herzen von Lonays ruhigster Wohngegend. Am Ortsrand gelegen, bietet es bemerkenswerte Ruhe und ist dennoch gut an den Nahverkehr und die Stadt Morges angebunden.
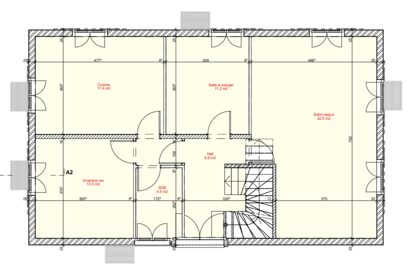
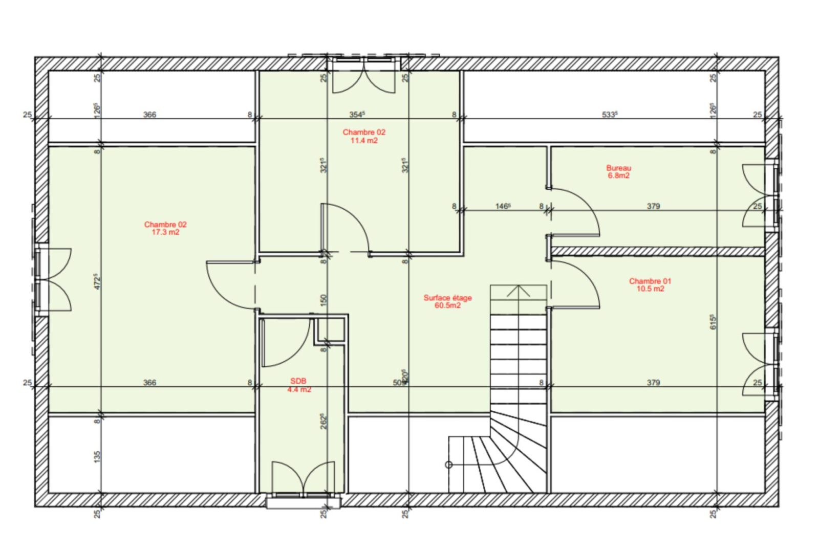
Die Villa bietet ca. 150 m² Wohnfläche bei einer Gesamtnutzfläche von knapp 230 m². Dank der großzügigen Grundstücksgröße und der Abmessungen des Areals würde ein Erweiterungsprojekt eine Gesamtwohnfläche von ca. 525 m² ermöglichen und somit außergewöhnliches Entwicklungspotenzial bieten: die Schaffung einer zusätzlichen Wohnung, Familienerweiterung, die Einrichtung von Geschäftsräumen oder sogar die Errichtung einer repräsentativen Immobilie.
Der rund 1400 m² große Garten ist eines der größten Pluspunkte des Anwesens. Seine Größe ermöglicht vielfältige Gestaltungsmöglichkeiten im Freien und garantiert gleichzeitig außergewöhnliche Privatsphäre inmitten grüner Natur.
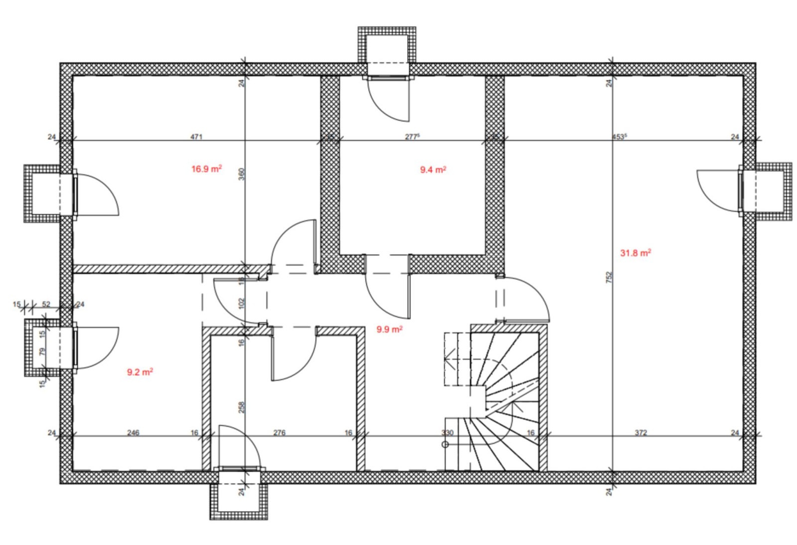
Das Haus verfügt über eine Luft-Wasser-Wärmepumpe, eine Einzelgarage und einen Keller von ca. 80 m², der sich ideal als Lagerraum, Werkstatt oder Mehrzweckraum eignet.
Lonay ist ein Dorf in der Nähe von Morges, das für seine einladende Atmosphäre und seine privilegierte Wohnlage geschätzt wird. Die Bushaltestelle, weniger als 50 Meter entfernt, ermöglicht bequemes Reisen zu Schulen, Geschäften und wichtigen Einrichtungen.
Dank seiner begehrten Lage, der hohen Qualität des Umfelds und seines beträchtlichen Baupotenzials bietet dieses Grundstück eine seltene Gelegenheit für ein maßgeschneidertes Projekt, sei es für die Familie, zur Erhaltung des kulturellen Erbes oder zur Aufwertung des Immobilienmarktes.