Zurück zur Ware

Haus/Villa von 5.5 Zimmer, Echichens, Vaud

Neues Projekt „AU VILLAGE“: Angrenzende 5,5-Zimmer-Villa mit Garten – Grundstück 4

Réf 59780

5.5 Zimmer

4 Schlafzimmer

3 Badezimmer

172 m2

BARNES MORGES PRÄSENTIERT IHNEN IHR ZUKÜNFTIGES NEUES ZUHAUSE:

Dieser neue Luxusbau (Lieferung Ende 2025 – Genehmigung in Kraft) bietet ein harmonisches Konzept von 5 aneinandergrenzenden PPE-Villen, das in einer ruhigen Wohngegend in einem Dorf nur 5 km von Morges entfernt liegt!
Der äußere Stil ist dörflich und modern und das Innere entschieden modern. Profitieren Sie von den neuesten Baustandards: Fußbodenheizung über eine Wärmepumpe mit Erdwärmesonde; elektrische Jalousien für Erkerfenster; Photovoltaik-Paneele; Dreifachverglasung usw.).

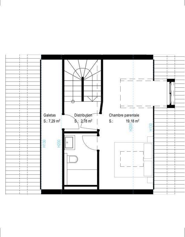
*VILLA 4 = Mit 171,55 m² Nutzfläche, effizient verteilt auf 3 Ebenen + Keller. Die Fertigstellung liegt im Ermessen des Mieters (siehe: Baubeschreibung).

Der Hauptraum bietet einen komfortablen Raum von ca. 40 m², der Zugang zur großzügigen Terrasse von ca. 31 m² und zum flachen und umzäunten Garten von 73 m² bietet, ideal für die Familie, die Unterhaltung von Freunden oder für Ihr Haustier.
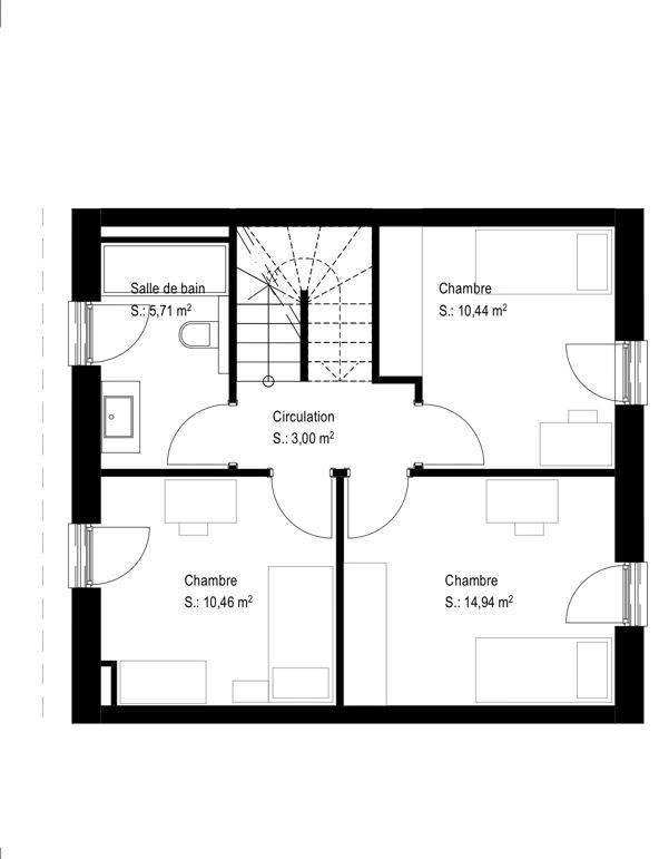
Die 4 Schlafzimmer haben eine gute Größe von etwa 10,50 m² (Kinderzimmer, Gästezimmer oder Büro) bis hin zu etwa 15 m² und schließlich einer tollen Fläche von über 19 m² für die Master-Suite im Obergeschoss. Für Ihre Freizeit: ein großer Raum von 22 m² im Keller. Dieser verfügbare Raum könnte beispielsweise zu einem Fitnessraum, einem Spielzimmer, einem Fernsehzimmer oder anderem werden.

*2 Außenparkplätze vervollständigen diese Immobilie für 15.000,-/Einheit zusätzlich zum Preis der Villa. Einer in unmittelbarer Nähe und der andere ein paar Meter entfernt.
Im PSA ist ein Besucherparkplatz vorhanden.

*Praktische Lage: Spielplatz 100 Meter entfernt, Buslinie 730 80 Meter entfernt, Bäckerei 3 Autominuten entfernt und Gemeindesteuersatz von 66 %.

*Ankaufsbedingungen = Es handelt sich um einen Grundstücksverkauf mit Baukredit und Generalunternehmervertrag.
(Wie buche ich? Reservierungsformular; Vertragsdetails; Informationen vom Notar und der Projektbank nach Vereinbarung)

Projektwebsite: https://www.au-village-st-saphorin-sur-morges.ch/

Eigenschaften der Immobilie

Typ :

Haus/Villa

Raüme :

5.5

Zimmer :

4

Bäder :

3

Terrasse(n) :

Ja

Parkplätze :

Ja

Wohnfläche :

171.6 m²

Grundstücksfläche :

172 m²

Nützliche Oberfläche :

171.6 m²

Gewichtete Fläche :

171.6 m²

Verfügbarkeit :

Sur demande

Baujahr :

2024

Ausstellung :

Osten

Lage der Immobilie

WEITERE OBJEKTE IN DER NÄHE

Herrenhaus aus dem 15. Jahrhundert auf 27.000 m²
Auf dem Land

teilen

Haus/Villa

SÉVERY • Prestige

Preis auf Anfrage

13.0 Zimmer

7 Schlafzimmer

1300 m²

Atypische Wohnung mit großzügigen Volumen

360°-Rundgang

teilen

Wohnung

MORGES

CHF 965'000.-

5.5 Zimmer

2 Schlafzimmer

334 m2

Prächtige renovierte Residenz aus dem 19. Jahrhundert

teilen

Haus/Villa

MONTRICHER

CHF 4'850'000.-

15.0 Zimmer

4 Schlafzimmer

800 m2

Entdecken Sie das BARNES-Magazin