Zurück zur Ware

Wohnung von 5.5 Zimmer, Bulle, Fribourg

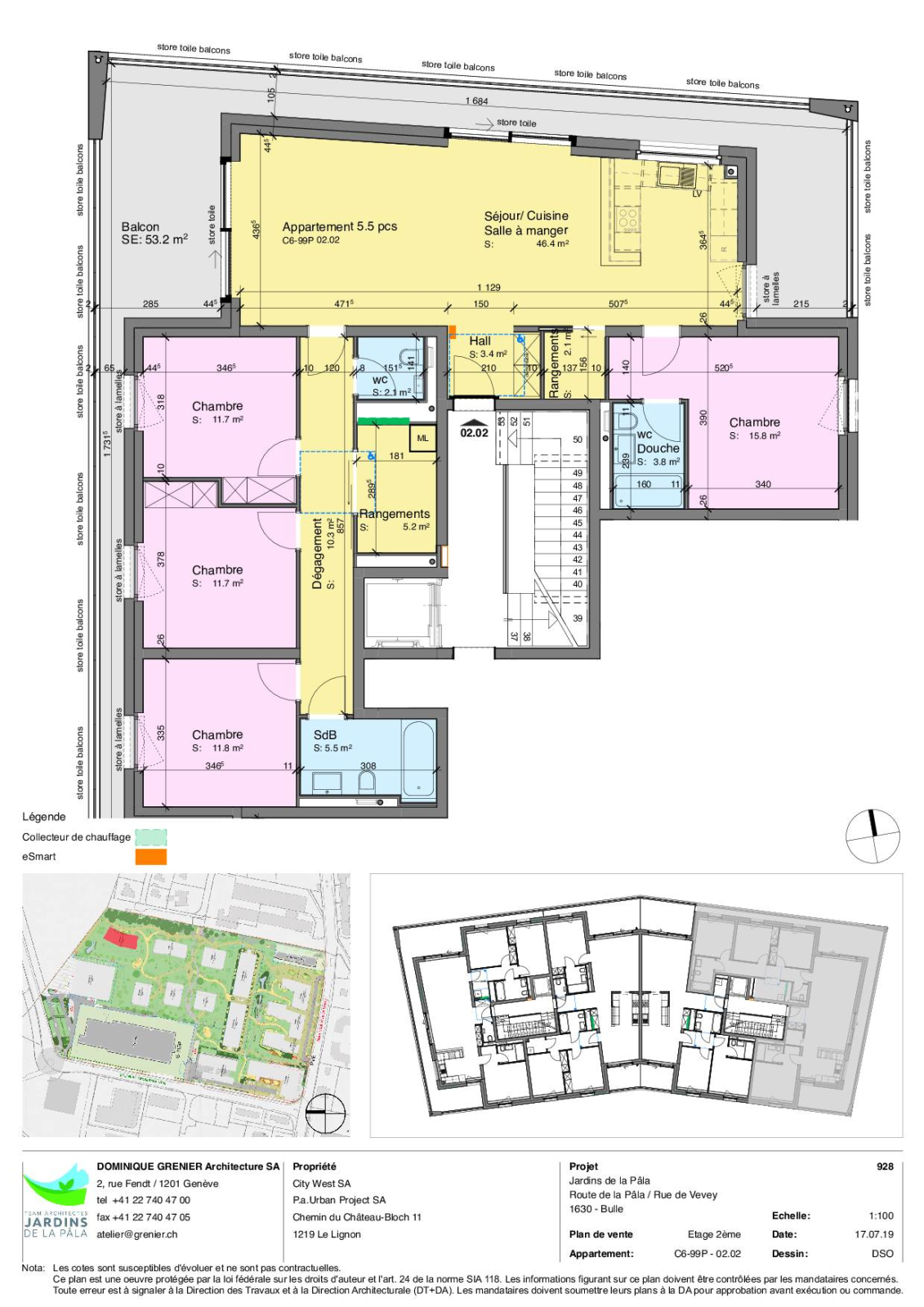
5,5-Zimmer-Kreuzungswohnung im 2. Obergeschoss

Réf 58648

5.5 Zimmer

4 Schlafzimmer

2 Badezimmer

150

Diese 5,5-Zimmer-Wohnung ist ruhig, nah an allen Annehmlichkeiten und Transportmitteln. Es besteht aus einer großen, gut ausgestatteten Wohnküche, einem großen Hauptschlafzimmer mit Bad, einem Gäste-WC, einem Badezimmer, 3 weiteren Schlafzimmern mit Schränken und einer großen Waschküche. Eine schöne Terrasse und ein Durchgang vervollständigen dieses Anwesen.
Das +:
- eSMART® Hausautomation, Hochgeschwindigkeitsfaser
- Erdwärmeheizung
- Großer Balkon
- Große Erkerfenster, Helligkeit
- Hochwertige Verarbeitung

Darüber hinaus vervollständigen 2 Tiefgaragenplätze diese Immobilie

Moderne Architektur, sanfte Mobilität, Gärten, Ruhe und Beschaulichkeit machen dieses Viertel zum neuen Zentrum von Bulle.
Zögern Sie nicht, es zu besichtigen!

Link zur virtuellen Tour: https://nodalview.com/WCSXMzfQBsbMXgVvpEFoXkhS

Eigenschaften der Immobilie

Typ :

Wohnung

Raüme :

5.5

Stockwerk :

2

Zimmer :

4

Bäder :

2

Balkon(e) :

Ja

Parkplätze :

Ja

Wohnfläche :

150.3 m²

Verfügbarkeit :

Sur demande

Ausstellung :

Südost

Lage der Immobilie

WEITERE OBJEKTE IN DER NÄHE

8-Zimmer-Anwesen im Herzen von Gruyère

teilen

Haus/Villa

LES SCIERNES-D'ALBEUVE

CHF 2'200'000.-

8.0 Zimmer

6 Schlafzimmer

438 m2

Eine Zeitreise in das Herz eines historischen Anwesens!
Eigenartiges Objekt

teilen

Haus/Villa

MONTAGNY-LA-VILLE

Preis auf Anfrage

16.0 Zimmer

14 Schlafzimmer

691 m²

3,5-Zimmer-Wohnung in La Verrerie, Haute-Veveyse
Exklusiv

360°-Rundgang

teilen

Wohnung

LA VERRERIE

CHF 649'000.-

3.5 Zimmer

2 Schlafzimmer

106 m2

Entdecken Sie das BARNES-Magazin