Zurück zur Ware

Haus/Villa von 7 Zimmer, Vandoeuvres, Genève

Luxuriöse, moderne Villa mit 360 m2 nutzbarer Giebelseite – Le Cèdre Bleu_Villa C

Réf 57122

7.0 Zimmer

4 Schlafzimmer

5 Badezimmer

360 m2

Diese prächtige Giebelvilla mit modernen Linien bietet mehr als 360 m² Nutzfläche, verteilt auf 3 Ebenen.
Auf einem wunderschönen, ruhigen Grundstück von 604 m² gelegen, wird es Sie mit seiner hochwertigen Ausstattung, seiner Helligkeit und seinem Volumen verführen.
Das Erdgeschoss mit einer Fläche von ca. 108 m² setzt sich wie folgt zusammen:
Die Eingangshalle mit Garderobe führt Sie zu einer großen und hell ausgestatteten Küche mit zentraler Kochinsel.
Letzteres öffnet sich zum Wohn-/Esszimmer mit großen Erkerfenstern nach Süden, die den ganzen Tag über optimale Sonneneinstrahlung bieten.
Auf einer Ebene sind Ihre Terrasse und der Garten durch das Wohnzimmer und das Schlafzimmer direkt für Sie zugänglich. Ein Schlafzimmer mit Kleiderschrank und eigenem Duschbad.
Im Eingangsbereich sind außerdem Besuchertoiletten mit Handwaschbecken vorhanden.

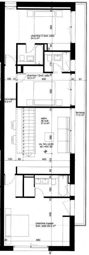
Der erste Stock mit einer Fläche von fast 130 m2 nützlicher Empfang: Eine Nachtlounge mit Kleiderschränken
Eine Suite mit Kleiderschränken und angrenzendem Bad/Dusche/WC.
Eine Suite mit Kleiderschränken und angrenzendem Bad/WC. Eine Suite mit Kleiderschränken und angrenzendem Bad/WC. Die drei Schlafzimmer haben Zugang zu einer 17 m² großen Terrasse, die entlang der Ostfassade verläuft.

Der Keller von mehr als 120 m2 wird über viel natürliches Licht verfügen:
Ein großes Spielzimmer mit schönem Licht.
Ein Kinoraum
Großer Fitnessraum und Bad/WC. Eine Waschküche/Technikraum und ein Keller vervollständigen die Etage.
Außenbereich: Eine überdachte Terrasse, die durch einen angenehmen grünen Garten erweitert wird, ruhig und vor neugierigen Blicken geschützt, sowie ein privater Unterstand, eine Sommerküche und 2 Außenparkplätze runden das Paket perfekt ab.


Entdecken Sie die dem Projekt gewidmete Website: www.cedre-bleu.ch

Eigenschaften der Immobilie

Typ :

Haus/Villa

Raüme :

7

Zimmer :

4

Bäder :

5

Grundstücksfläche :

604 m²

Nützliche Oberfläche :

360 m²

Verfügbarkeit :

Sur demande

Baujahr :

2022

Ausstellung :

Süd

Lage der Immobilie

WEITERE OBJEKTE IN DER NÄHE

Charmantes Haus zum Renovieren mit Seeblick

teilen

Haus/Villa

COLOGNY

CHF 9'500'000.-

8.0 Zimmer

3 Schlafzimmer

350 m²

Wunderschönes Loft mit Terrassen und Garten

teilen

Wohnung

TROINEX

CHF 2'690'000.-

6.0 Zimmer

4 Schlafzimmer

181 m²

Geräumiges Penthouse-Maisonette von 235 m², komplett renoviert

teilen

Wohnung

BERNEX

CHF 2'150'000.-

9.0 Zimmer

5 Schlafzimmer

235 m²

Entdecken Sie das BARNES-Magazin