Zurück zur Ware

Haus/Villa von 8 Zimmer, Vandoeuvres, Genève

Le Cèdre Bleu – Projekt von drei luxuriösen modernen Villen Villa A

Réf 57116

8.0 Zimmer

5 Schlafzimmer

5 Badezimmer

350 m2

Diese prächtige Giebelvilla mit modernen Linien bietet mehr als 350 m² Nutzfläche, verteilt auf 3 Ebenen.
Auf einem wunderschönen, ruhigen Grundstück von 348 m² gelegen, wird es Sie mit seiner hochwertigen Ausstattung, seiner Helligkeit und seinem Volumen verführen.
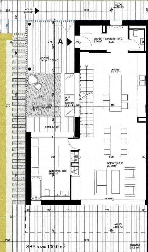
Das Erdgeschoss mit einer Fläche von ca. 100 m² setzt sich wie folgt zusammen:
Die Eingangshalle mit Garderobe führt Sie zu einer großen und hell ausgestatteten Küche mit zentraler Kochinsel.
Letzteres öffnet sich zum Wohn-/Esszimmer mit großen Erkerfenstern nach Südwesten, die den ganzen Tag über optimale Sonneneinstrahlung bieten.
Auf einer Ebene sind Ihre Terrasse und der Garten direkt vom Wohnzimmer aus zugänglich. Ein Schlafzimmer mit eigenem Duschbad ist vom Wohnzimmer aus zugänglich und bietet direkten Zugang zur Terrasse.
Im Eingangsbereich sind außerdem Besuchertoiletten mit Handwaschbecken vorhanden.
Über eine Treppe, die dank des Erkerfensters auf der Terrasse viel natürliches Licht erhält, gelangen Sie in die obere Etage.

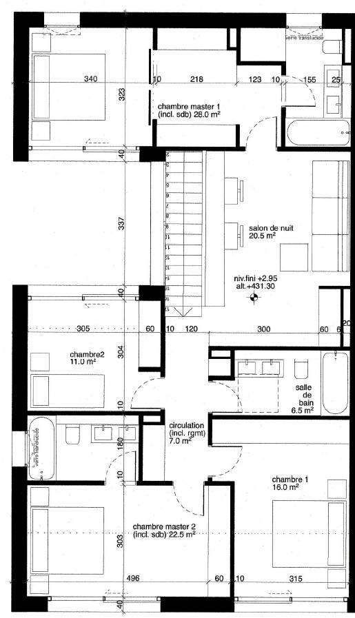
Die erste Etage mit einer Nutzfläche von fast 140 m2: Eine Master-Suite mit Ankleidezimmer und angrenzendem Bad/WC.
Eine Suite mit Einbauschränken und angrenzendem Bad/WC. Zwei Schlafzimmer mit Einbauschränken. Ein Badezimmer/WC mit Dachfenster.

Der Keller von mehr als 110 m2 wird über einen Tageslichtschacht verfügen:
Ein großes Spielzimmer mit schönem Licht. Großer Fitnessraum und Bad/WC. Eine Waschküche/Technikraum und ein Keller vervollständigen die Etage.
Außenbereich: Eine überdachte Terrasse, die durch einen angenehmen grünen Garten erweitert wird, ruhig und vor neugierigen Blicken geschützt, sowie eine Terrasse mit privatem Unterstand und 2 Außenparkplätze runden das Ganze perfekt ab.

Entdecken Sie die dem Projekt gewidmete Website: www.cedre-bleu.ch

Eigenschaften der Immobilie

Typ :

Haus/Villa

Raüme :

8

Zimmer :

5

Bäder :

5

Wohnfläche :

240 m²

Grundstücksfläche :

348 m²

Nützliche Oberfläche :

350 m²

Verfügbarkeit :

Sur demande

Baujahr :

2022

Ausstellung :

Süd

Lage der Immobilie

WEITERE OBJEKTE IN DER NÄHE

Charmantes Haus zum Renovieren mit Seeblick

teilen

Haus/Villa

COLOGNY

CHF 9'500'000.-

8.0 Zimmer

3 Schlafzimmer

350 m²

Wunderschönes Loft mit Terrassen und Garten

teilen

Wohnung

TROINEX

CHF 2'690'000.-

6.0 Zimmer

4 Schlafzimmer

181 m²

Geräumiges Penthouse-Maisonette von 235 m², komplett renoviert

teilen

Wohnung

BERNEX

CHF 2'150'000.-

9.0 Zimmer

5 Schlafzimmer

235 m²

Entdecken Sie das BARNES-Magazin