Zurück zur Ware

Haus/Villa von 6 Zimmer, Troinex, Genève

LETZTE GELEGENHEIT – Le Parc des Crêts – Helle, moderne Villa im Westgiebel – Villa_B2-42

Réf 56497

6.0 Zimmer

4 Schlafzimmer

2 Badezimmer

265 m2

Außergewöhnliche Residenz vor den Toren der Stadt, eingebettet in einen Park von mehr als 68.000 m2. Absolute Ruhe garantiert durch die völlige Abwesenheit von Straßenverkehr.
Unmittelbare Nähe zu öffentlichen Verkehrsmitteln sowie Geschäften und Schulen im Herzen des Dorfes Troinex.

Diese helle, moderne Giebelvilla mit Süd-West-Ausrichtung bietet eine Bruttogeschossfläche von 184,8 m2, zu der ein Bruttokeller von 81 m2 hinzukommt.
Im Erdgeschoss bietet es einen Eingang mit Schränken, ein Gäste-WC, eine schöne Küche mit zentraler Essinsel, ein helles Wohn-/Esszimmer mit Zugang zur Terrasse und zum Garten.
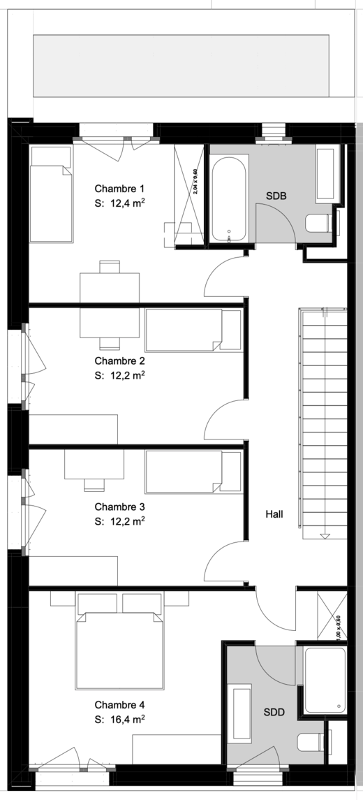
Im ersten Stock befinden sich eine Mastersuite mit Garderobe und angrenzendem Duschbad/WC, 3 Kinderzimmer und ein Bad/WC.
Im Untergeschoss befinden sich ein großes Spielzimmer mit Gewölbedecke, eine Waschküche, ein Keller, ein Abstellraum und eine Halle mit Zugang zur Tiefgarage, in der sich zusätzlich zum Verkaufspreis 2 Boxen im Wert von CHF 120.000 befinden .

Draußen ein privater Fahrrad-/Gartengeräteschuppen, eine Terrasse von 28,6 m2 und ein Garten von 147,1 m2


https://www.parcdescrets-troinex.ch/

Darüber hinaus erfüllt dieses Projekt die THPE-Standards, was einen ökologischen und ökonomischen Vorteil für Ihren Energieverbrauch und eine Befreiung von der Grundsteuer für 20 Jahre bedeutet.

Eigenschaften der Immobilie

Typ :

Haus/Villa

Raüme :

6

Zimmer :

4

Bäder :

2

Terrasse(n) :

Ja

Parkplätze :

Ja

Wohnfläche :

184.8 m²

Nützliche Oberfläche :

265.3 m²

Verfügbarkeit :

Sur demande

Baujahr :

2023

Ausstellung :

Süd

Lage der Immobilie

WEITERE OBJEKTE IN DER NÄHE

Charmantes Haus zum Renovieren mit Seeblick

teilen

Haus/Villa

COLOGNY

CHF 9'500'000.-

8.0 Zimmer

3 Schlafzimmer

350 m²

Wunderschönes Loft mit Terrassen und Garten

teilen

Wohnung

TROINEX

CHF 2'690'000.-

6.0 Zimmer

4 Schlafzimmer

181 m²

Geräumiges Penthouse-Maisonette von 235 m², komplett renoviert

teilen

Wohnung

BERNEX

CHF 2'150'000.-

9.0 Zimmer

5 Schlafzimmer

235 m²

Entdecken Sie das BARNES-Magazin