Zurück zur Ware

Wohnung von 4.5 Zimmer, Cossonay, Vaud

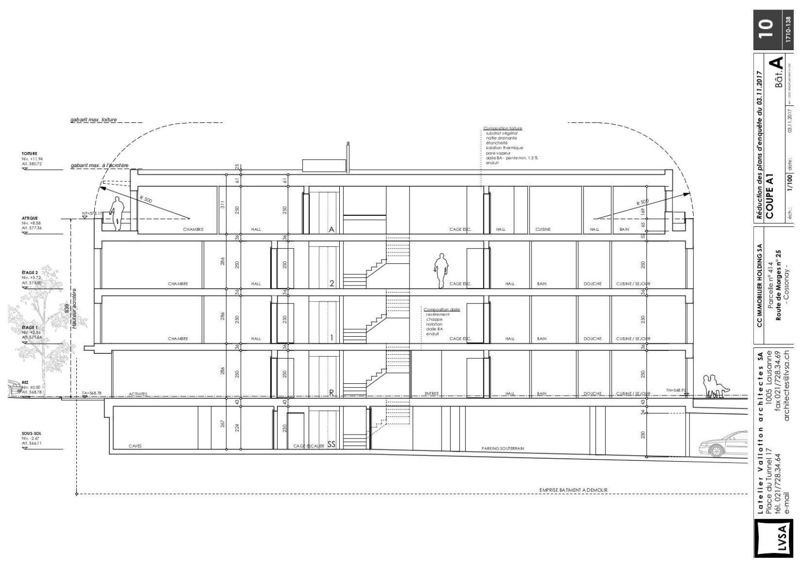
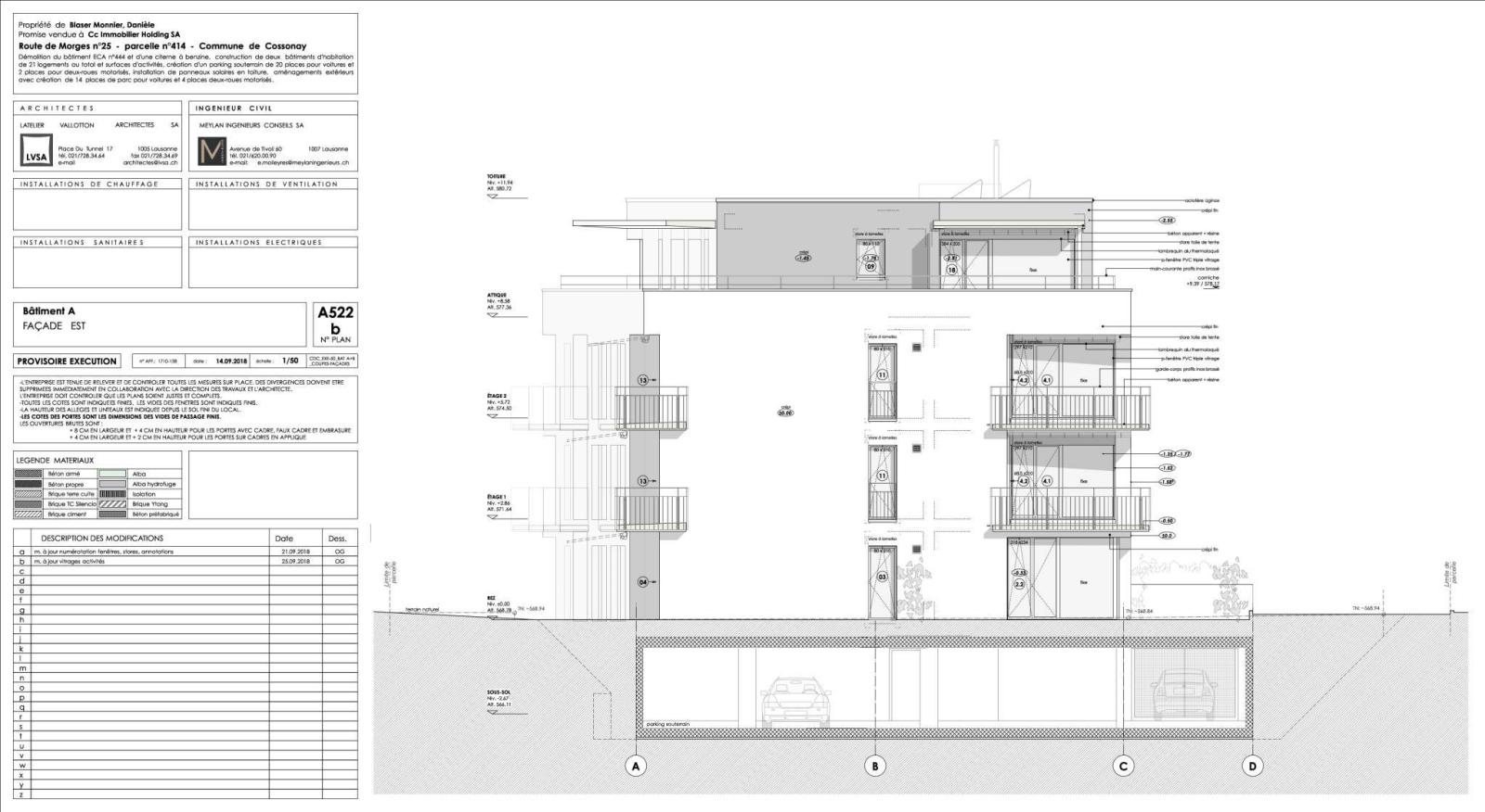
2020: Modernes Penthouse mit Aufzug.

Réf 52892

4.5 Zimmer

3 Schlafzimmer

1 Bad

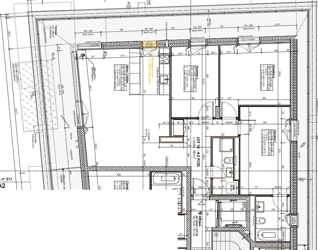
122 m²

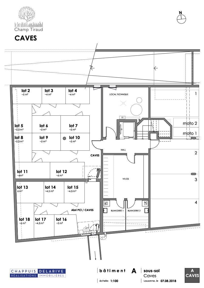
(LOS Nr. A18)

Letztes Los zum Verkauf: 360°-Fernbesichtigung verfügbar!
Wunderschönes neues 4,5-Zimmer-Penthouse (im Giebel des Gebäudes, daher kreuzend und nach 3 Seiten offen), in guter Qualität und im Neubaustandard (Lieferung bis September 2020!) mit großzügiger Süd-/Westterrasse und Blick ins Grüne.
Es wurden bereits Entscheidungen getroffen, um die Fristen einzuhalten und gleichzeitig alle für dieses Projekt bereitgestellten komfortablen Budgets sorgfältig zu nutzen. Darüber hinaus profitierte der Wohn-/Küchenbereich auch von 20.000,- Kapitalgewinnen als Bonus aus den geplanten Anfangsbudgets (im Verkaufspreis enthalten).

Diese Wohnung verfügt über zwei Parkplätze: einen Innenparkplatz für 35.000,- und einen Außenparkplatz für 15.000,- zusätzlich zum Wohnungspreis.
- In der Nähe von Schule, Geschäften, Bussen und insbesondere dem CFF-Bahnhof (Lausanne/Yverdon).

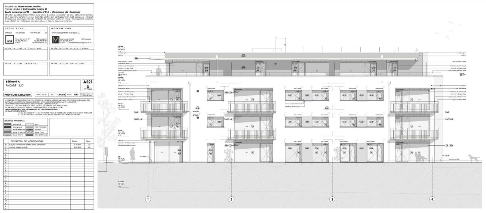
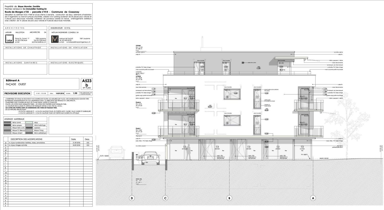
- Das Projekt berücksichtigt die Ausrichtungen, Sichtabstände und Einschränkungen des Standorts, um die verschiedenen Typologien zu definieren, die von 2,5 bis 4,5 Zimmern reichen. Alle Wohnungen verfügen über überwiegend nach Süden ausgerichtete Balkone. Penthäuser mit großen Terrassen krönen jedes der beiden Gebäude.
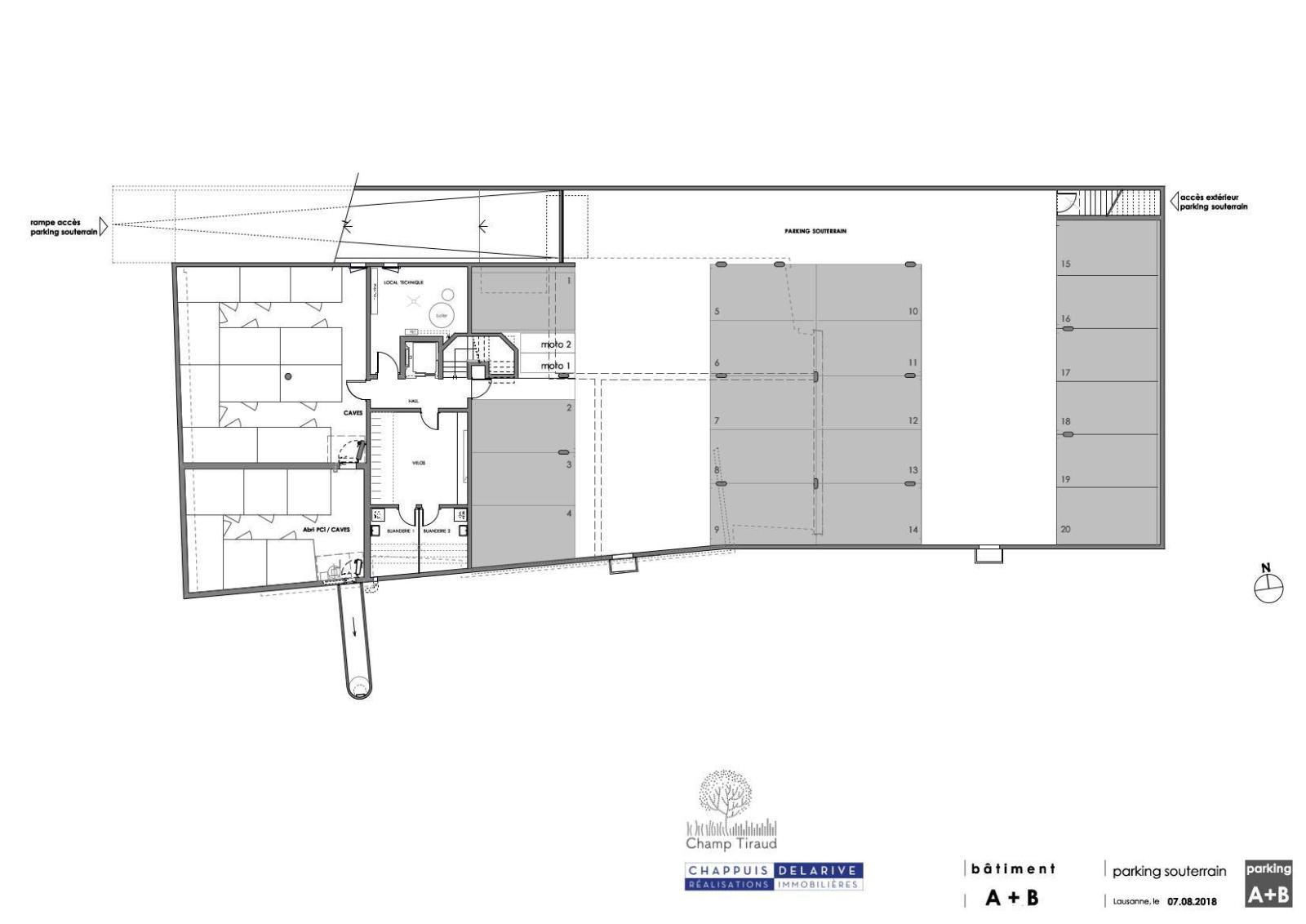
Die Tiefgarage ist direkt vom Keller des Gebäudes A und über eine Außentreppe für Gebäude B mit zusätzlichen Außenstellplätzen erreichbar.

- Grünflächen mit Bäumen und ein Spielplatz beleben den Raum zwischen den beiden Gebäuden.

- Flache Gründächer integrieren Photovoltaik- und thermische Solarmodule, um die Produktion von Strom, Wärme und Warmwasser zu gewährleisten, was Teil eines Ansatzes für erneuerbare Energien ist. Die Wahl der Fenster- und Fassadenmaterialien wirkt passiv in diese Richtung.

- Die großen Erkerfenster in den Wohnräumen sowie die Auswahl an Balkonbrüstungen sorgen für eine gewisse Transparenz und sorgen so für gutes Licht.

- Die zeitgenössische Architektur des Ganzen ist nüchtern mit kontrastierenden Farboptionen zwischen den Böden und den Dachböden. Die Wahl der Materialien wie sauberer Beton für die Balkone und einen Teil der Aktivitätsflächen harmoniert harmonisch mit den Edelstahlgeländern und der Struktur der Feinputzfassaden.

Bei der Gestaltung dieses Sets wurde besonderes Augenmerk darauf gelegt, Ästhetik und Funktionalität zu vereinen.

Eigenschaften der Immobilie

Typ :

Wohnung

Raüme :

4.5

Stockwerk :

Dachboden

Zimmer :

3

Bäder :

1

Balkon(e) :

Ja

Parkplätze :

Ja

Wohnfläche :

98 m²

Gewichtete Fläche :

122 m²

Verfügbarkeit :

Sur demande

Baujahr :

2020

Ausstellung :

Südwesten

Lage der Immobilie

WEITERE OBJEKTE IN DER NÄHE

Herrenhaus aus dem 15. Jahrhundert auf 27.000 m²
Auf dem Land

teilen

Haus/Villa

SÉVERY • Prestige

Preis auf Anfrage

13.0 Zimmer

7 Schlafzimmer

1300 m²

Atypische Wohnung mit großzügigen Volumen

360°-Rundgang

teilen

Wohnung

MORGES

CHF 965'000.-

5.5 Zimmer

2 Schlafzimmer

334 m2

Prächtige renovierte Residenz aus dem 19. Jahrhundert

teilen

Haus/Villa

MONTRICHER

CHF 4'850'000.-

15.0 Zimmer

4 Schlafzimmer

800 m2

Entdecken Sie das BARNES-Magazin