Zurück zur Ware

Wohnung von 2.5 Zimmer, Cossonay, Vaud

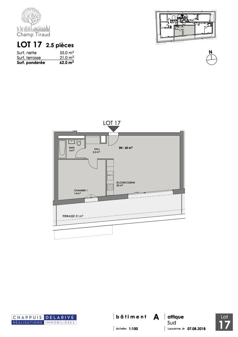
Grundstück A17: 2,5 Zimmer mit Penthouse-Terrasse

Réf 52891

2.5 Zimmer

1 Schlafzimmer

1 Bad

55

Hervorragendes modernes Penthouse (3. Etage mit Aufzug) von 55 m², das von der nach Süden ausgerichteten Sonne und einer großzügigen Terrasse von 21 m² profitiert. Elektrische Jalousie für das Erkerfenster im Wohnzimmer. Dieses Jahr verfügbar! (Juni)
In der Nähe: Bus (nach Morges); CFF-Station (Yverdon oder Lausanne); Schulen; Migros...usw.
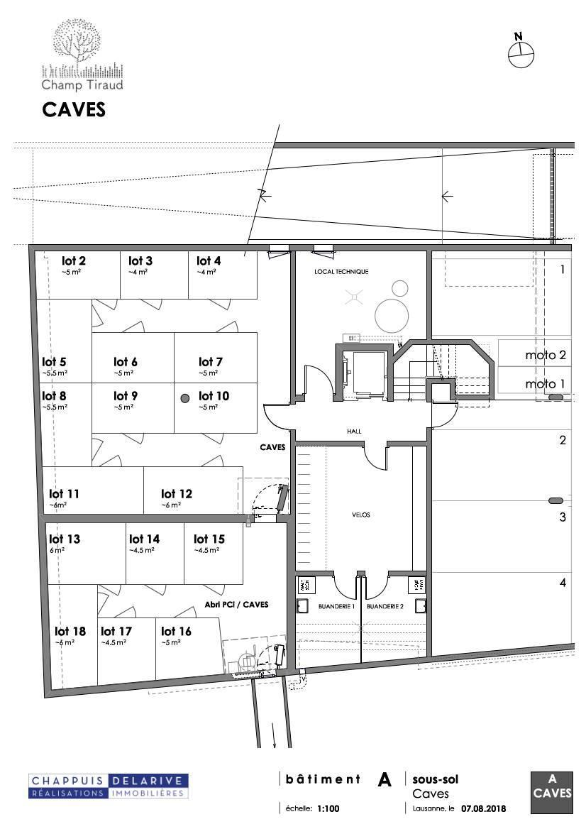
Das Grundstück liegt in der Nähe des Stadtzentrums und verfügt über zwei Zonen, eine gemischte Zone mit geringer Dichte (B) und eine Zone mit mittlerer Dichte (A). Als Ergebnis präsentiert das Projekt zwei differenzierte Gebäude, die jeweils an die jeweilige Zone angepasst sind: Das am weitesten von der Straße entfernte Gebäude in der Mischzone B bietet ausschließlich Wohnraum, während das andere in der Mischzone A zusätzlich Wohnraum bietet , zwei Bereiche, die für Aktivitäten vorgesehen sind.
Das Projekt berücksichtigt die Ausrichtungen, Sichtabstände und Einschränkungen des Standorts, um die verschiedenen Typologien zu definieren, die von 2,5 bis 4,5 Zimmern reichen. Alle Wohnungen verfügen über überwiegend nach Süden ausgerichtete Balkone. Penthäuser mit großen Terrassen krönen jedes der beiden Gebäude.
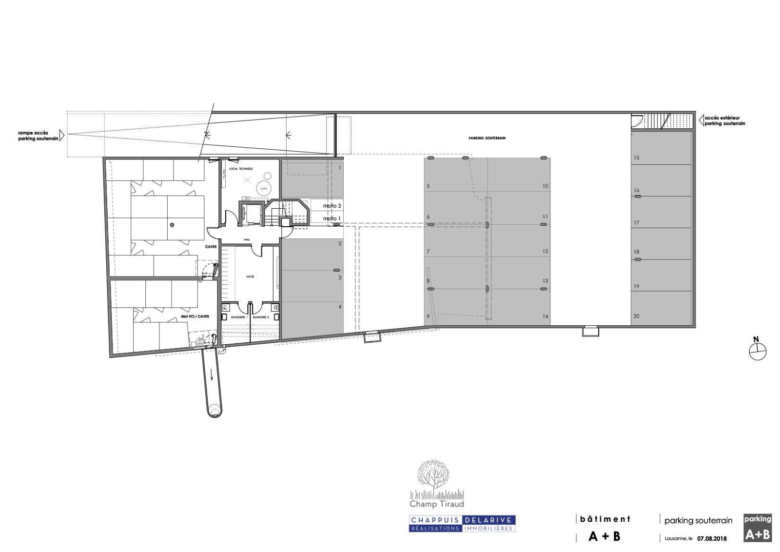
Die Tiefgarage ist direkt vom Keller des Gebäudes A und über eine Außentreppe für Gebäude B mit zusätzlichen Außenstellplätzen erreichbar.

Grünflächen mit Bäumen und ein Spielplatz beleben den Raum zwischen den beiden Gebäuden.

Flache Gründächer integrieren Photovoltaik- und thermische Solarmodule, um die Produktion von Strom, Wärme und Warmwasser zu gewährleisten, was Teil eines Ansatzes für erneuerbare Energien ist. Die Wahl der Fenster- und Fassadenmaterialien wirkt passiv in diese Richtung.

Die großen Erkerfenster in den Wohnräumen sowie die Auswahl an Balkongeländern sorgen für eine gewisse Transparenz und sorgen so für gutes Licht.

Die zeitgenössische Architektur des Ganzen ist nüchtern mit kontrastierenden Farboptionen zwischen den Böden und den Dachböden. Die Wahl der Materialien wie sauberer Beton für die Balkone und einen Teil der Aktivitätsflächen harmoniert harmonisch mit den Edelstahlgeländern und der Struktur der Feinputzfassaden.

Bei der Gestaltung dieses Sets wurde besonderes Augenmerk darauf gelegt, Ästhetik und Funktionalität zu vereinen.

Eigenschaften der Immobilie

Typ :

Wohnung

Raüme :

2.5

Stockwerk :

Dachboden

Zimmer :

1

Bäder :

1

Parkplätze :

Ja

Wohnfläche :

55 m²

Gewichtete Fläche :

62 m²

Verfügbarkeit :

Sur demande

Ausstellung :

Süd

Lage der Immobilie

WEITERE OBJEKTE IN DER NÄHE

Herrenhaus aus dem 15. Jahrhundert auf 27.000 m²
Auf dem Land

teilen

Haus/Villa

SÉVERY • Prestige

Preis auf Anfrage

13.0 Zimmer

7 Schlafzimmer

1300 m²

Atypische Wohnung mit großzügigen Volumen

360°-Rundgang

teilen

Wohnung

MORGES

CHF 965'000.-

5.5 Zimmer

2 Schlafzimmer

334 m2

Prächtige renovierte Residenz aus dem 19. Jahrhundert

teilen

Haus/Villa

MONTRICHER

CHF 4'850'000.-

15.0 Zimmer

4 Schlafzimmer

800 m2

Entdecken Sie das BARNES-Magazin