AUSSCHLIESSLICH!
15 Minuten von Yverdon-les-Bains entfernt besteht das neue Projekt „Champs-Soleil“, verteilt auf 4 Etagen, aus 7 Wohnungen mit 3,5 Zimmern und 4,5 Zimmern mit Flächen zwischen 79 und 130 m².
Die Unterkunft verfügt über ein großes Wohnzimmer mit einer großzügig ausgestatteten offenen Küche und zwei Badezimmern/Duschen. Alle Obergeschosswohnungen verfügen über große Balkone von 11 m² bis 15 m², während die Erdgeschosswohnungen über Gartenterrassen verfügen.
Jede Wohnung ist nach Süden ausgerichtet und bietet einen wunderschönen Blick auf den See und die Alpen. Dank der großen Schiebeerkerfenster, die die Sonne ins Haus einladen, können Sie den ganzen Tag über vom Licht profitieren.
Dieser Neubau liegt auf einem sonnigen Grundstück und weniger als 500 Meter vom See entfernt.
Das zeitgemäße und moderne Projekt nutzt neue Bautechnologien, was eine hohe Qualität garantiert.
Diese neue Residenz bietet Ihnen eine Oase der Ruhe in einer Stadt mit idyllischer Lage, in der es sich gut leben lässt, nur einen Steinwurf vom See entfernt und mit schönen Lichtungen.
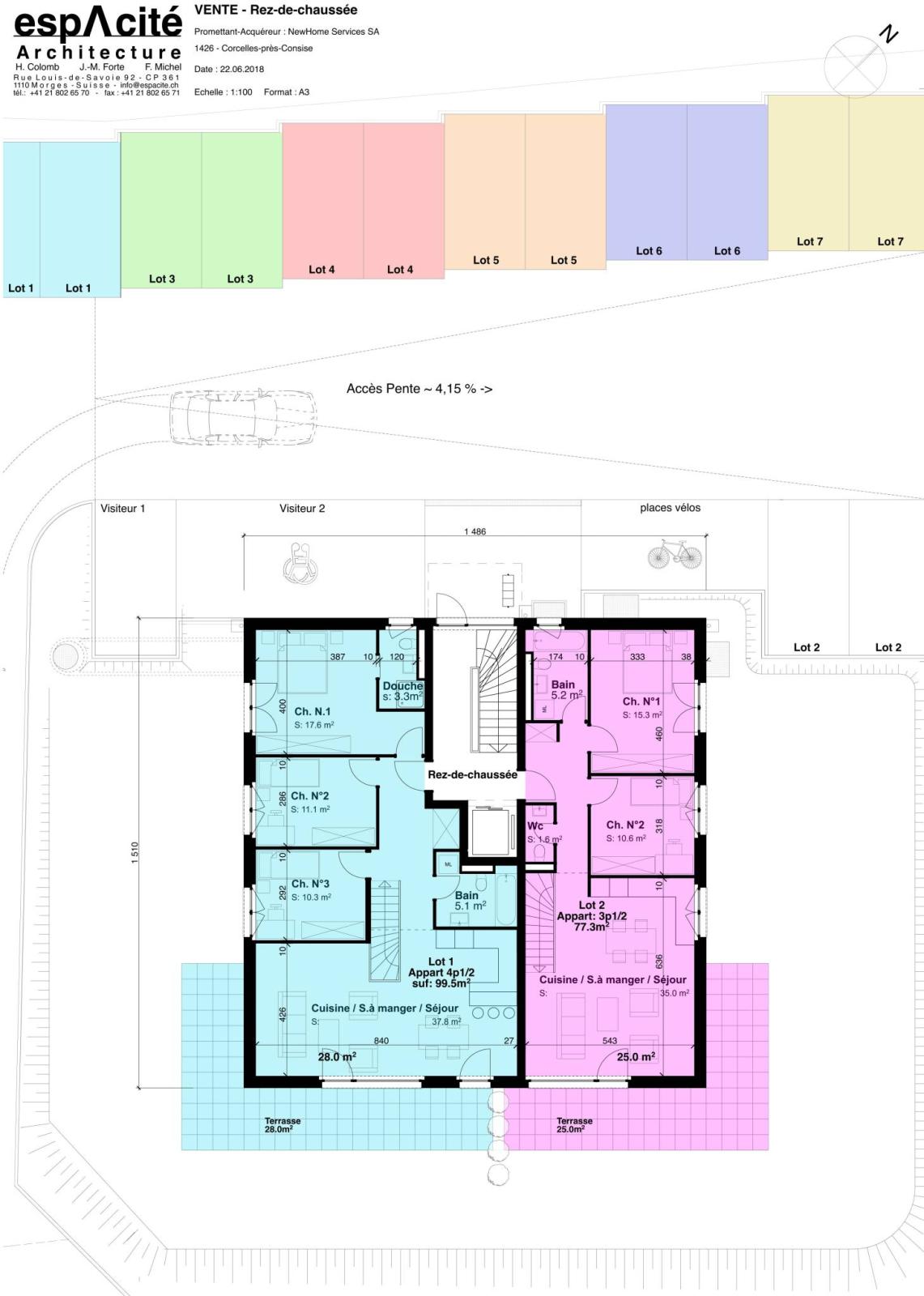
Die Vorteile dieses Projekts: - Direkter Zugang zum privaten Keller, der geräumige Keller- und Werkstatträume für die Wohnungen im Erdgeschoss, Grundstücke Nr. 1 und Nr. 2, bietet
- Geräumige Wohnungen mit schönen Gartenterrassen oder großen Balkonen
- Ideale Lage im Herzen des Dorfes, nah an allen Annehmlichkeiten und ohne Belästigung, nur 15 Minuten. aus Yverdon-les-Bains.
- Wahl der Ausführungen nach Ermessen des Mieters
Grundstück Nr. 1: Die geplante, nach Südosten ausgerichtete Wohnung im Erdgeschoss ist wie folgt aufgeteilt: - Eine Eingangshalle
- Eine offene und voll ausgestattete Küche
- Ein geräumiges Wohn-/Esszimmer mit Ausgang zur Gartenterrasse
- Ein Hauptschlafzimmer mit angrenzendem Duschbad/WC
- 3 Schlafzimmer
- Ein Badezimmer mit Badewanne/WC mit Waschmaschine/Trocknersäule
- Eine Terrasse von ca. 28 m² mit privatem Garten von ca. 165 m²
- Direkter Zugang zum privaten Keller mit großer Kellerwerkstatt von ca. 51 m²
Zusätzlich zum Verkaufspreis, d.h. CHF 12'000.- pro Parkplatz, stehen 2 Aussenparkplätze zur Verfügung.
Baugenehmigung erteilt. Voraussichtliche Lieferung: Ende Juli 2020.
Zögern Sie nicht länger und entdecken Sie alle zum Verkauf stehenden Wohnungen auf www.champs-soleil.ch