Die Aktion „Les Cèdres“ liegt in der Nähe der üblichen Annehmlichkeiten, nur wenige Minuten von UNIL, EPFL, ECAL, öffentlichen Verkehrsmitteln und sogar Autobahnen entfernt und wird alle Ihre Erwartungen erfüllen.
Die Aktion besteht aus zwei MINERGIE-zertifizierten Gebäuden, die als PPE verkauft werden, in einem neuen, im Bau befindlichen Wohngebiet. Die Aktion besteht aus eleganten Wohnungen unterschiedlicher Typologie; Dies in einem zeitgenössischen Umfeld, das zu einer neuen Anpassung der Stadtgestaltung führt.
Dieses gemischte Wohn- und Gewerbequartier wird seinen Bewohnern insbesondere durch die Förderung sanfter Mobilität eine unvergleichliche Lebensqualität bieten. Gemeinsame Wohnräume wie ein zentrales Atrium, ein Spielbereich oder sogar eine Tiefgarage sind nur einige der Vorzüge dieser derzeit im Bau befindlichen Gebäude.
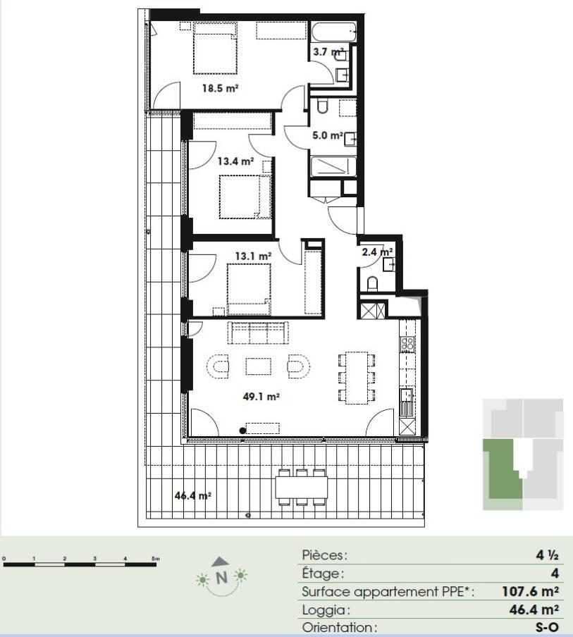
Die vorgeschlagene Wohnung mit Süd-West-Ausrichtung im 4. Stock ist wie folgt aufgeteilt:
- Eingangshalle mit Wandschränken
- 2 Badezimmer mit WC
- 3 Schlafzimmer
- 1 großes Wohn-/Esszimmer
- Offene und ausgestattete Küche
- Besuchertoilette mit Waschbecken
- TerrasseDie Lieferung Ihrer zukünftigen Unterkunft, deren Ausführung wählbar ist, ist für das erste Quartal 2020 geplant. Zusätzlich zum Verkaufspreis (CHF 35.000.-) steht ein überdachter Parkplatz zur Verfügung.
Zögern Sie nicht länger und finden Sie alle verfügbaren Grundstücke auf www.auxcedres.ch/gerofinance-dunand