Zurück zur Ware

Wohnung von 3.5 Zimmer, Epalinges, Vaud

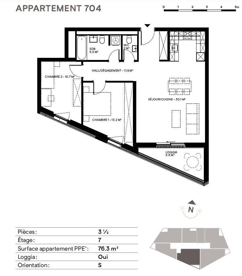
3,5 Zimmer im 7. Stock – Grundstück Nr. 704

Réf 52293

3.5 Zimmer

2 Schlafzimmer

1 Bad

73

In einer grünen Umgebung gelegen, nur wenige Minuten von der Ecole Hôtelière de Lausanne, öffentlichen Verkehrsmitteln oder sogar Autobahnverbindungen entfernt, wird die Aktion „Grand Chemin“ alle Ihre Erwartungen erfüllen.

Die Anlage besteht aus zwei einander gegenüberliegenden und sich ergänzenden Gebäuden. Sie vereint einerseits elegante Wohnungen mit freiem Ausblick für die künftigen Bewohner und beherbergt andererseits kommerzielle Aktivitäten.

Tiefgaragenplätze für Autos, Fahrräder und Kinderwagen, gemeinsame Wohnbereiche mit Garten, privater Innenhof und Spielplatz sind nur einige der Vorzüge dieser derzeit im Bau befindlichen Gebäude.

Die vorgeschlagene, nach Süden ausgerichtete Wohnung im 7. Stock ist wie folgt aufgeteilt:

- Eingangshalle mit Wandschränken
- Großes Wohnzimmer mit Essbereich
- Offene Einbauküche
- Schlafzimmer Nr. 1
- Schlafzimmer Nr. 2
- Badezimmer/WC mit Platz für Waschsäule
- Besuchertoilette
- Balkon
Die Übergabe Ihrer zukünftigen Unterkunft, deren Ausführung wählbar ist, ist für Herbst 2019 geplant. Zusätzlich zum Verkaufspreis (CHF 40.000.-) steht ein überdachter Parkplatz zur Verfügung. Zögern Sie nicht länger und finden Sie alle verfügbaren Grundstücke auf www.grand-chemin.ch/gerofinance

Eigenschaften der Immobilie

Typ :

Wohnung

Raüme :

3.5

Stockwerk :

7

Zimmer :

2

Bäder :

1

Balkon(e) :

Ja

Parkplätze :

Ja

Wohnfläche :

73.4 m²

Gewichtete Fläche :

76.3 m²

Verfügbarkeit :

Sur demande

Ausstellung :

Süd

Lage der Immobilie

WEITERE OBJEKTE IN DER NÄHE

Außergewöhnliche Residenz im Herzen der schönen Viertel von Lausanne
Exklusiv

teilen

Video

Haus/Villa

LAUSANNE • Prestige

CHF 7'900'000.-

11.5 Zimmer

6 Schlafzimmer

450 m2

Komplett renoviertes Architektenobjekt

teilen

Haus/Villa

LA CROIX (LUTRY) • Prestige

CHF 6'800'000.-

11.0 Zimmer

8 Schlafzimmer

500 m2

340 m² großes Herrenhaus mitten in der Natur.
Exklusiv

teilen

Haus/Villa

SAVIGNY

CHF 3'300'000.-

9.5 Zimmer

6 Schlafzimmer

340 m2

Entdecken Sie das BARNES-Magazin