In einer grünen Umgebung gelegen, nur wenige Minuten von der Ecole Hôtelière de Lausanne, öffentlichen Verkehrsmitteln oder sogar Autobahnverbindungen entfernt, wird die Aktion „Grand Chemin“ alle Ihre Erwartungen erfüllen.
Die Anlage besteht aus zwei einander gegenüberliegenden und einander ergänzenden Gebäuden. Sie vereint einerseits elegante Wohnungen mit freiem Ausblick für die künftigen Bewohner und beherbergt andererseits kommerzielle Aktivitäten.
Tiefgaragenplätze für Autos, Fahrräder und Kinderwagen, gemeinsame Wohnbereiche mit Garten, privater Innenhof und Spielplatz sind nur einige der Vorzüge dieser derzeit im Bau befindlichen Gebäude.
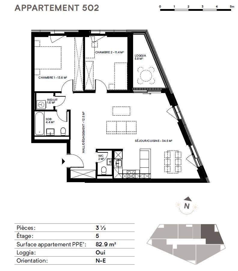
Die vorgeschlagene Wohnung mit Nord-Ost-Ausrichtung im 5. Stock ist wie folgt aufgeteilt:
- Eingangshalle mit Wandschränken
- Großes Wohnzimmer mit Essbereich
- Offene Einbauküche
- Schlafzimmer Nr. 1
- Schlafzimmer Nr. 2
- Badezimmer/WC
- Besuchertoilette
- Reduziert mit Platz für Waschkolonne
- Balkon
Die Lieferung Ihrer zukünftigen Unterkunft, deren Ausstattung frei gewählt werden kann, ist für Herbst 2019 geplant. Zusätzlich zum Verkaufspreis (CHF 40.000.-) steht Ihnen ein überdachter Parkplatz zur Verfügung. Zögern Sie nicht länger und finden Sie alles die verfügbaren Lose auf https://www.grand-chemin.ch/gerofinance-dunand