Zurück zur Ware

Wohnung von 3.5 Zimmer, Epalinges, Vaud

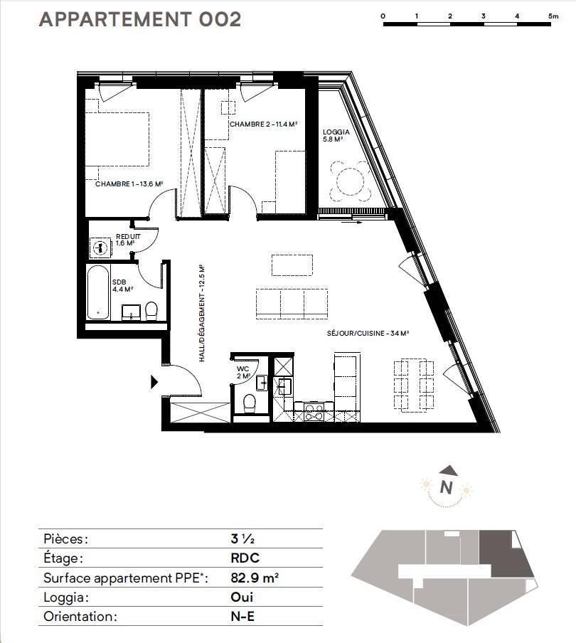
3,5 Zimmer im Obergeschoss – Grundstück Nr. 2

Réf 52236

3.5 Zimmer

2 Schlafzimmer

1 Bad

80

In einer grünen Umgebung gelegen, nur wenige Minuten von der Ecole Hôtelière de Lausanne, öffentlichen Verkehrsmitteln oder sogar Autobahnverbindungen entfernt, wird die Aktion „Grand Chemin“ alle Ihre Erwartungen erfüllen.

Die Anlage besteht aus zwei einander gegenüberliegenden und sich gegenseitig ergänzenden Gebäuden. Sie vereint einerseits elegante Wohnungen mit freiem Ausblick für die künftigen Bewohner und beherbergt andererseits kommerzielle Aktivitäten.

Tiefgaragenplätze für Autos, Fahrräder und Kinderwagen, gemeinsame Wohnbereiche mit Garten, privater Innenhof und Spielplatz sind nur einige der Vorzüge dieser derzeit im Bau befindlichen Gebäude.

Die vorgeschlagene Wohnung mit Nord-Ost-Ausrichtung im Hochparterre ist wie folgt aufgeteilt:

- Eingangshalle mit Wandschränken
- Großes Wohnzimmer mit Essbereich
- Offene Einbauküche
- Schlafzimmer Nr. 1
- Schlafzimmer Nr. 2
- Badezimmer/WC
- Besuchertoilette
- Reduziert mit Platz für Waschkolonne
- Balkon
Die Lieferung Ihrer zukünftigen Unterkunft, deren Ausstattung frei gewählt werden kann, ist für Herbst 2019 geplant. Zusätzlich zum Verkaufspreis (CHF 40.000.-) steht Ihnen ein überdachter Parkplatz zur Verfügung. Zögern Sie nicht länger und finden Sie alles die verfügbaren Lose auf https://www.grand-chemin.ch/gerofinance-dunand

Eigenschaften der Immobilie

Typ :

Wohnung

Raüme :

3.5

Stockwerk :

Oberes Erdgeschoss

Zimmer :

2

Bäder :

1

Parkplätze :

Ja

Wohnfläche :

79.5 m²

Gewichtete Fläche :

82.4 m²

Verfügbarkeit :

Sur demande

Ausstellung :

Nordost

Lage der Immobilie

WEITERE OBJEKTE IN DER NÄHE

Außergewöhnliche Residenz im Herzen der schönen Viertel von Lausanne
Exklusiv

teilen

Video

Haus/Villa

LAUSANNE • Prestige

CHF 7'900'000.-

11.5 Zimmer

6 Schlafzimmer

450 m2

Komplett renoviertes Architektenobjekt

teilen

Haus/Villa

LA CROIX (LUTRY) • Prestige

CHF 6'800'000.-

11.0 Zimmer

8 Schlafzimmer

500 m2

Letzte Gelegenheit: Neue 5-Zimmer-Wohnung mit Blick auf den Genfersee
Dernière opportunité

teilen

Wohnung

PULLY

CHF 2'250'000.-

5.0 Zimmer

3 Schlafzimmer

113 m²

Entdecken Sie das BARNES-Magazin