Zurück zur Ware

Haus/Villa von 5.5 Zimmer, Gibloux, Fribourg

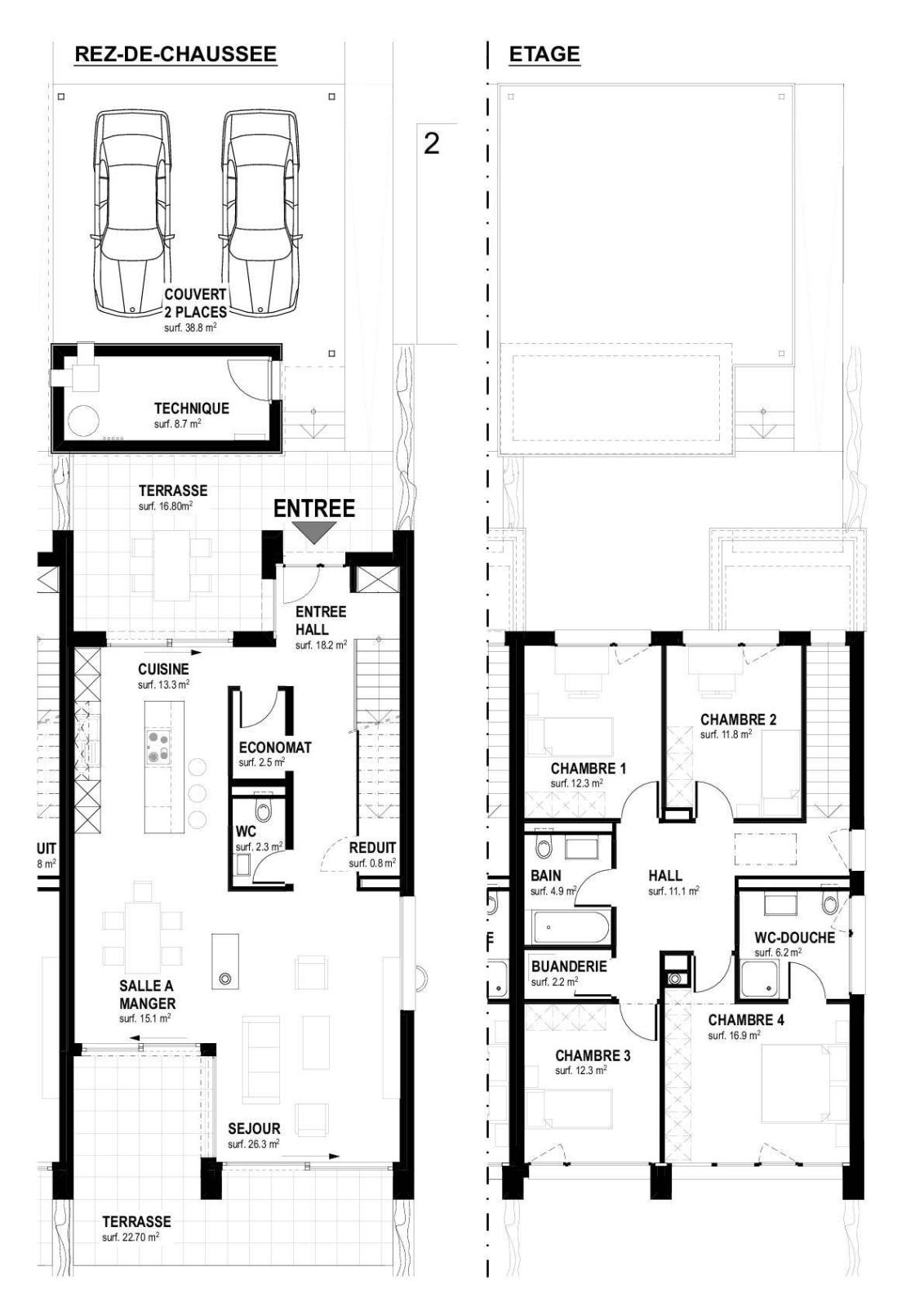
Villa E5 Promotion Les Prés de Farvagny

Réf 43150

5.5 Zimmer

4 Schlafzimmer

2 Badezimmer

156

Farvagny ist ein charmantes grünes Dorf, Teil der Gemeinde Gibloux im Saanegebiet.

Durch ihre ausgezeichnete geografische Lage bietet die Gemeinde Gibloux einen Rahmen, der die industrielle Entwicklung begünstigt, indem sie einen natürlichen Standort erhält, der die Entwicklung ihrer Bevölkerung begünstigt und gleichzeitig verbindet

die Ruhe und der Charme der Landschaft. In der Nähe der Stadt Freiburg und ihrer Autobahnen. Tatsächlich liegt das Dorf nur 25 Minuten von Bern entfernt

45 Minuten von Lausanne entfernt.

Diese neue Aktion wird Familien, Paare und alle, die sich eine gute Lebensqualität wünschen, begeistern.

Die idyllisch gelegene Stadt Gibloux ist ein hervorragender Ausgangspunkt für zahlreiche Freizeitaktivitäten. Dank der Aufnahmeeinrichtungen haben Kinder das Privileg, ihre gesamte Schulpflicht (vom Kleinkindalter bis zur Orientierungsphase) im Schulkreis der Gemeinde absolvieren zu können. Das Dorf wird vom Freiburger Bus des öffentlichen Verkehrs (TPF) bedient.

Farvagny bietet außerdem alle notwendigen Annehmlichkeiten wie lokale Geschäfte, Restaurants, Banken usw. Sportanlagen, Waldwege, Wanderwege, eine Bibliothek ermöglichen es jedem, seine Freizeit zu verbringen. Mehr als 20 Unternehmen beleben das kulturelle und sportliche Leben der Stadt.

Jede der Villen wird dank der Ausführung, die im Ermessen des Käufers liegt, einzigartig sein; Die Verteilung der Teile ist jedoch in jeder Charge ähnlich.

Die großen und hellen Räume werden Sie verführen, die warme und gemütliche Atmosphäre des zukünftigen Villenviertels wird Ihnen das Gefühl geben, zu Hause zu sein, die beiden schönen Terrassen ermöglichen es Ihnen, die optimale Sonneneinstrahlung ganz nach Ihren Wünschen zu genießen, und schließlich ein überdachtes Auto mit 2 Plätzen Vervollständigen Sie jede der Villen.

Eigenschaften der Immobilie

Typ :

Haus/Villa

Raüme :

5.5

Zimmer :

4

Bäder :

2

Wohnfläche :

156.2 m²

Grundstücksfläche :

884 m²

Verfügbarkeit :

Sur demande

Lage der Immobilie

WEITERE OBJEKTE IN DER NÄHE

8-Zimmer-Anwesen im Herzen von Gruyère

teilen

Haus/Villa

LES SCIERNES-D'ALBEUVE

CHF 2'200'000.-

8.0 Zimmer

6 Schlafzimmer

438 m2

Eine Zeitreise in das Herz eines historischen Anwesens!
Eigenartiges Objekt

teilen

Haus/Villa

MONTAGNY-LA-VILLE

Preis auf Anfrage

16.0 Zimmer

14 Schlafzimmer

691 m²

3,5-Zimmer-Wohnung in La Verrerie, Haute-Veveyse
Exklusiv

360°-Rundgang

teilen

Wohnung

LA VERRERIE

CHF 649'000.-

3.5 Zimmer

2 Schlafzimmer

106 m2

Entdecken Sie das BARNES-Magazin