Zurück zur Ware

Wohnung von 4.5 Zimmer, Bulle, Fribourg

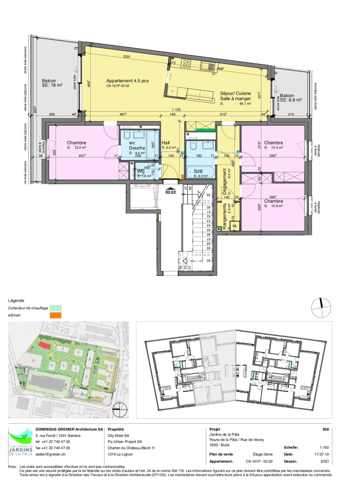
LES JARDINS DE LA PÂLA - "Alapge" C6-101 - Grundstück 02.02 - 4,5-Zimmer-Wohnung im 2. Stock

Réf 42988

4.5 Zimmer

3 Schlafzimmer

2 Badezimmer

122

BARNES SUISSE SA bietet Ihnen:

PSA-Wohnungen von 2,5 bis 5,5 Zimmern ab CHF 335'000.- zu verkaufen. Für weitere Informationen und um herauszufinden, welche Lose noch verfügbar sind, zögern Sie nicht, uns zu kontaktieren.

„Ihr Wohlbefinden steht im Mittelpunkt“

Das Viertel Pâla in Bulle befindet sich in der letzten Bauphase und die ersten Wohnungen wurden bereits geliefert. Sie alle profitieren von:

- eSMART® Hausautomation, Hochgeschwindigkeitsfaser
- Erdwärmeheizung
- Großer Balkon
- Große Erkerfenster, Helligkeit
- Hochwertige Verarbeitung

Moderne Architektur, sanfte Mobilität, Gärten, Ruhe und Beschaulichkeit machen diesen nächsten Bezirk zum neuen Zentrum von Bulle.

Eigenschaften der Immobilie

Typ :

Wohnung

Raüme :

4.5

Stockwerk :

2

Zimmer :

3

Bäder :

2

Balkon(e) :

Ja

Parkplätze :

Ja

Wohnfläche :

122.2 m²

Verfügbarkeit :

Sur demande

Ausstellung :

West

Lage der Immobilie

WEITERE OBJEKTE IN DER NÄHE

8-Zimmer-Anwesen im Herzen von Gruyère

teilen

Haus/Villa

LES SCIERNES-D'ALBEUVE

CHF 2'200'000.-

8.0 Zimmer

6 Schlafzimmer

438 m2

Eine Zeitreise in das Herz eines historischen Anwesens!
Eigenartiges Objekt

teilen

Haus/Villa

MONTAGNY-LA-VILLE

Preis auf Anfrage

16.0 Zimmer

14 Schlafzimmer

691 m²

3,5-Zimmer-Wohnung in La Verrerie, Haute-Veveyse
Exklusiv

360°-Rundgang

teilen

Wohnung

LA VERRERIE

CHF 649'000.-

3.5 Zimmer

2 Schlafzimmer

106 m2

Entdecken Sie das BARNES-Magazin