Zurück zur Ware

Wohnung von 3.5 Zimmer, Bulle, Fribourg

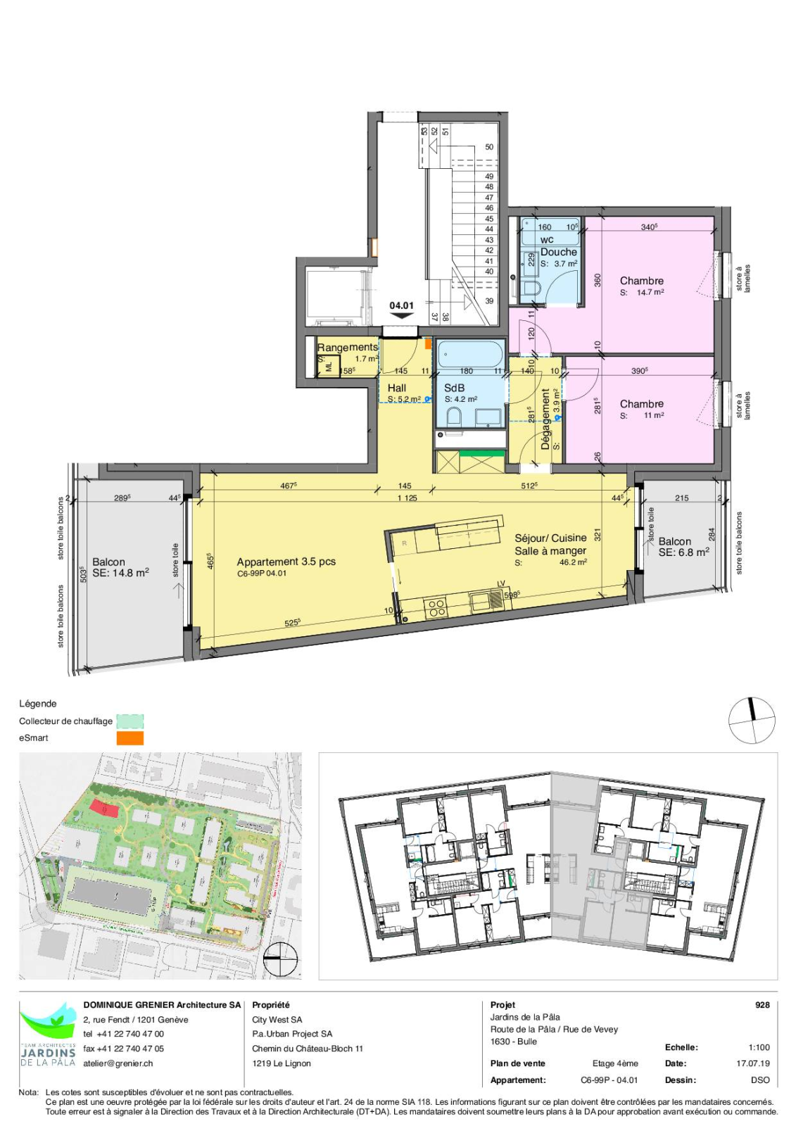
LES JARDINS DE LA PÂLA - "Alapge" C6-99 - Grundstück 04.01 - 3,5-Zimmer-Wohnung im 4. Stock

Réf 42981

3.5 Zimmer

2 Schlafzimmer

2 Badezimmer

100

Kommen Sie und entdecken Sie das letzte Gebäude einer großartigen Aktion mit PPE-Wohnungen – Viertel Pâla in Bulle – L'Alpage ist ein Luxusgebäude in einem wunderschönen bewaldeten Park.

Die Typologien variieren je nach Ihren Wünschen und Bedürfnissen von 2,5 bis 5,5 Zimmern auf 5 Etagen und bieten Ihnen einen herrlichen Blick auf die Gruyère-Hauptstadt.

Durch die Zusammensetzung der Wohnungen stehen Ihnen großzügige Räume mit Wohnflächen von 50 bis 161 m² zur Verfügung. Genießen Sie sehr angenehme Terrassen.

Der Bau wird von höchster Qualität mit hochwertigen Materialien und moderner Architektur sein.

Die grüne Außenumgebung ist perfekt für alle, die das Grün lieben und gleichzeitig den Komfort der Stadt mit allen Annehmlichkeiten schätzen.

Eigenschaften der Immobilie

Typ :

Wohnung

Stockwerk :

4

Zimmer :

2

Bäder :

2

Balkon(e) :

Ja

Parkplätze :

Ja

Wohnfläche :

100 m²

Verfügbarkeit :

Sur demande

Ausstellung :

West

Lage der Immobilie

WEITERE OBJEKTE IN DER NÄHE

8-Zimmer-Anwesen im Herzen von Gruyère

teilen

Haus/Villa

LES SCIERNES-D'ALBEUVE

CHF 2'200'000.-

8.0 Zimmer

6 Schlafzimmer

438 m2

Eine Zeitreise in das Herz eines historischen Anwesens!
Eigenartiges Objekt

teilen

Haus/Villa

MONTAGNY-LA-VILLE

Preis auf Anfrage

16.0 Zimmer

14 Schlafzimmer

691 m²

3,5-Zimmer-Wohnung in La Verrerie, Haute-Veveyse
Exklusiv

360°-Rundgang

teilen

Wohnung

LA VERRERIE

CHF 649'000.-

3.5 Zimmer

2 Schlafzimmer

106 m2

Entdecken Sie das BARNES-Magazin