Zurück zur Ware

Wohnung von 3.5 Zimmer, Bulle, Fribourg

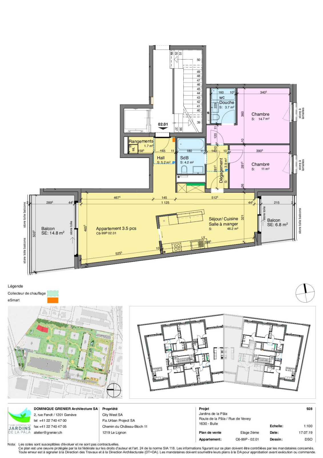
„Alpage“ C6-99 – Grundstück 02.01 – 3,5-Zimmer-Wohnung im 2. Stock

Réf 42979

3.5 Zimmer

2 Schlafzimmer

2 Badezimmer

100

Kommen Sie und entdecken Sie das letzte Gebäude einer großartigen Aktion mit PPE-Wohnungen – Viertel Pâla in Bulle – L'Alpage ist ein Luxusgebäude in einem wunderschönen bewaldeten Park.

Die Typologien variieren je nach Ihren Wünschen und Bedürfnissen, von 2,5 Zimmern bis 5,5 Zimmern auf 5 Etagen und bieten Ihnen einen herrlichen Blick auf die Gruyère-Hauptstadt.

Durch die Zusammensetzung der Wohnungen stehen Ihnen großzügige Räume mit Wohnflächen von 50 bis 161 m² zur Verfügung. Genießen Sie sehr angenehme Terrassen.

Der Bau wird von höchster Qualität mit hochwertigen Materialien und moderner Architektur sein.

Die grüne Außenumgebung ist perfekt für alle, die das Grün lieben und gleichzeitig den Komfort der Stadt mit allen Annehmlichkeiten schätzen. Lieferung im letzten Quartal 2020.

Eigenschaften der Immobilie

Typ :

Wohnung

Raüme :

3.5

Stockwerk :

2

Zimmer :

2

Bäder :

2

Balkon(e) :

Ja

Parkplätze :

Ja

Wohnfläche :

100 m²

Gewichtete Fläche :

10.3 m²

Verfügbarkeit :

Sur demande

Ausstellung :

West

Lage der Immobilie

WEITERE OBJEKTE IN DER NÄHE

8-Zimmer-Anwesen im Herzen von Gruyère

teilen

Haus/Villa

LES SCIERNES-D'ALBEUVE

CHF 2'200'000.-

8.0 Zimmer

6 Schlafzimmer

438 m2

Eine Zeitreise in das Herz eines historischen Anwesens!
Eigenartiges Objekt

teilen

Haus/Villa

MONTAGNY-LA-VILLE

Preis auf Anfrage

16.0 Zimmer

14 Schlafzimmer

691 m²

3,5-Zimmer-Wohnung in La Verrerie, Haute-Veveyse
Exklusiv

360°-Rundgang

teilen

Wohnung

LA VERRERIE

CHF 649'000.-

3.5 Zimmer

2 Schlafzimmer

106 m2

Entdecken Sie das BARNES-Magazin