Zurück zur Ware

Wohnung von 5.5 Zimmer, Bulle, Fribourg

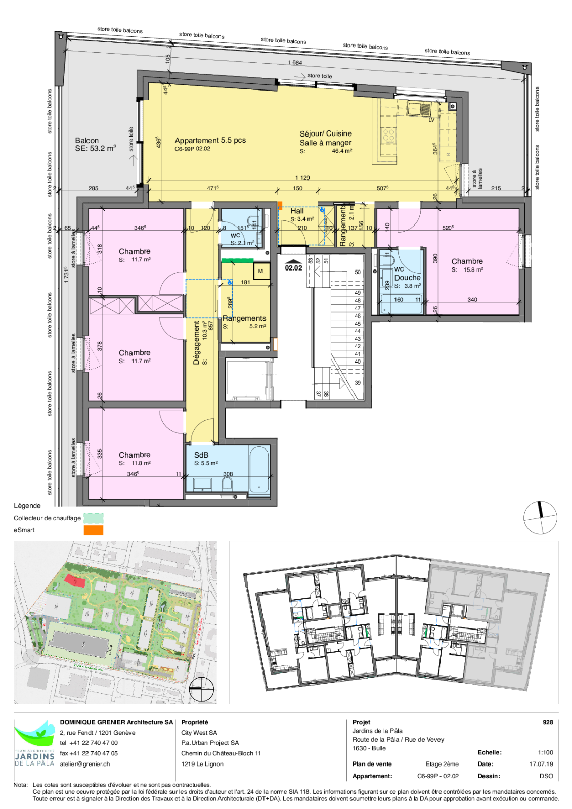
Exklusiv: letzte 5.5-Zimmer-Wohnung im 2. Obergeschoss

Réf 42971

5.5 Zimmer

4 Schlafzimmer

2 Badezimmer

150

Die Vermarktung der Promotion des Pâla-Viertels in Bulle geht zu Ende. Diese 5,5-Zimmer-Wohnung ist die letzte verfügbare Wohnung in diesem großartigen, ruhigen Angebot, in der Nähe aller Annehmlichkeiten und Transportmittel. Es besteht aus einer großen, gut ausgestatteten Wohnküche, einem großen Hauptschlafzimmer mit Bad, einem Gäste-WC, einem Badezimmer, 3 weiteren Schlafzimmern mit Schränken und einer großen Waschküche. Eine schöne Terrasse und ein Durchgang vervollständigen dieses Anwesen.
Das +:
- eSMART® Hausautomation, Hochgeschwindigkeitsfaser
- Erdwärmeheizung
- Großer Balkon
- Große Erkerfenster, Helligkeit
- Hochwertige Oberflächen

Moderne Architektur, sanfte Mobilität, Gärten, Ruhe und Beschaulichkeit machen dieses Viertel zum neuen Zentrum von Bulle.
Zögern Sie nicht, es zu besichtigen!

Eigenschaften der Immobilie

Typ :

Wohnung

Raüme :

5.5

Stockwerk :

2

Zimmer :

4

Bäder :

2

Balkon(e) :

Ja

Parkplätze :

Ja

Wohnfläche :

150.3 m²

Verfügbarkeit :

Sur demande

Ausstellung :

Südost

Lage der Immobilie

WEITERE OBJEKTE IN DER NÄHE

8-Zimmer-Anwesen im Herzen von Gruyère

teilen

Haus/Villa

LES SCIERNES-D'ALBEUVE

CHF 2'200'000.-

8.0 Zimmer

6 Schlafzimmer

438 m2

Eine Zeitreise in das Herz eines historischen Anwesens!
Eigenartiges Objekt

teilen

Haus/Villa

MONTAGNY-LA-VILLE

Preis auf Anfrage

16.0 Zimmer

14 Schlafzimmer

691 m²

3,5-Zimmer-Wohnung in La Verrerie, Haute-Veveyse
Exklusiv

360°-Rundgang

teilen

Wohnung

LA VERRERIE

CHF 649'000.-

3.5 Zimmer

2 Schlafzimmer

106 m2

Entdecken Sie das BARNES-Magazin