Zurück zur Ware

Wohnung von 4.5 Zimmer, Gingins, Vaud

62-7 - NEUES ANGEBOT Domaine de Chiblins - 4,5-Zimmer-Triplex

Réf 60291

4.5 Zimmer

3 Schlafzimmer

3 Badezimmer

152

CHF 1'290'000.-

Dieses Projekt liegt im Herzen des Dorfes Gingins in der Nähe von Nyon und an der Autobahn zwischen Genf und Lausanne und wird Sie mit seiner Authentizität verführen.

Es handelt sich um die Sanierung eines alten Bauernhofs in 6 Wohnungen und ein Triplex mit separatem Eingang.

Eine harmonische Mischung aus der Authentizität des Gebäudes und dem Charme der alten Dorfseite und dem zeitgenössischen Design auf der Hofseite sowie den innovativen Technologien für einen umweltfreundlichen Energieverbrauch: Photovoltaikmodule und aerodynamische Wärmepumpe machen den Unterschied.

Das 3-stöckige Gebäude bietet 2 Wohnungen pro Etage. Zu jeder Wohnung gehört ein Kellerabteil im Untergeschoss.
Alle Ebenen dieser Immobilien sind mit einem Aufzug erreichbar.
Ein Triplex mit separatem Eingang vervollständigt dieses Projekt. 2 Einstellhallenplätze zum Preis von je CHF 25'000 sind für ihn reserviert.
____________________________________________________________________________________________

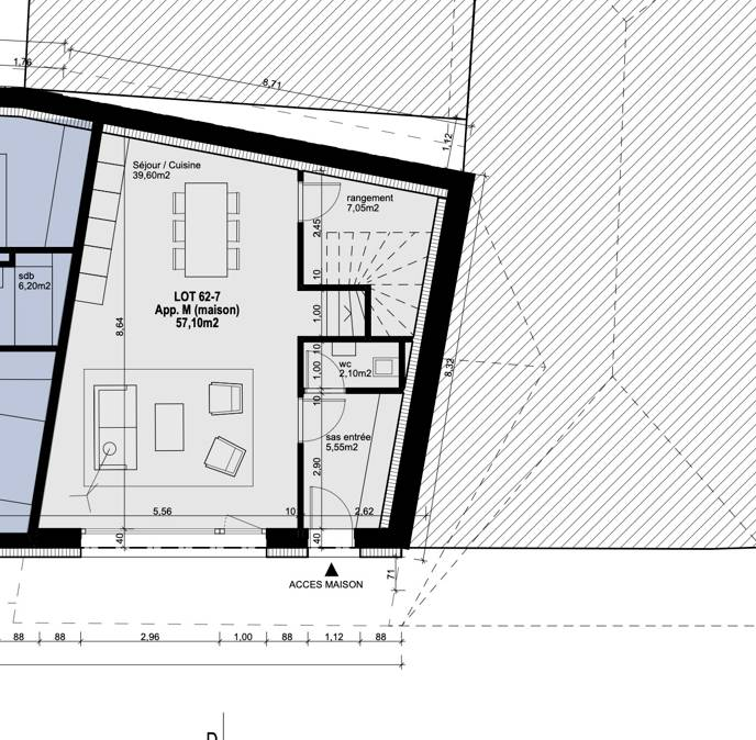
Grundstück 62-7, Triplex-Wohnung auf 3 Ebenen verteilt.
Mit einer Wohnfläche von 152 m2 verteilt es sich wie folgt:

Im Erdgeschoss (57,10 m²):
- Separater Eingang mit Schleuse - Wohn-/Esszimmer - Offene Küche - Abstellraum - Gäste-WC

Im 1. Stock (56,80 m2):
- 2 Schlafzimmer - 2 Badezimmer - 1 Abstellraum

Im 2. Stock (38,50 m²): - 1 Schlafzimmer - 1 Badezimmer - Lagerraum

Im Keller:
- Gemeinsamer Waschraum - Technikraum - Müllraum
- Für dieses Grundstück sind 2 Parkplätze zum Preis von je CHF 25'000 reserviert.

Eigenschaften der Immobilie

Typ :

Wohnung

Verkaufspreis :

CHF 1'290'000.-

Raüme :

4.5

Zimmer :

3

Bäder :

3

Parkplätze :

Ja

Wohnfläche :

152 m²

Grundstücksfläche :

289 m²

Gewichtete Fläche :

152 m²

Verfügbarkeit :

Sur demande

Baujahr :

2024

Lage der Immobilie

WEITERE OBJEKTE IN DER NÄHE

Vom Architekten entworfene Villa mit 7,5 Zimmern, See- und Bergblick

teilen

Haus/Villa

ARZIER

Preis auf Anfrage

7.5 Zimmer

5 Schlafzimmer

400 m²

Außergewöhnliche Residenz im Herzen des Dorfes

teilen

Haus/Villa

GENOLIER

Preis auf Anfrage

14.5 Zimmer

8 Schlafzimmer

600 m²

62-6 - NEUE AKTION Domaine de Chiblins 2,5 Zimmerwohnung

teilen

Wohnung

GINGINS

CHF 750'000.-

2.5 Zimmer

1 Schlafzimmer

81 m²

Entdecken Sie das BARNES-Magazin